DISEÑO | CONSTRUCCIÓN | COORDINACIÓN DE PROYECTOS | EJECUCIÓN DE OBRA

PROYECTOS EJECUTIVOS

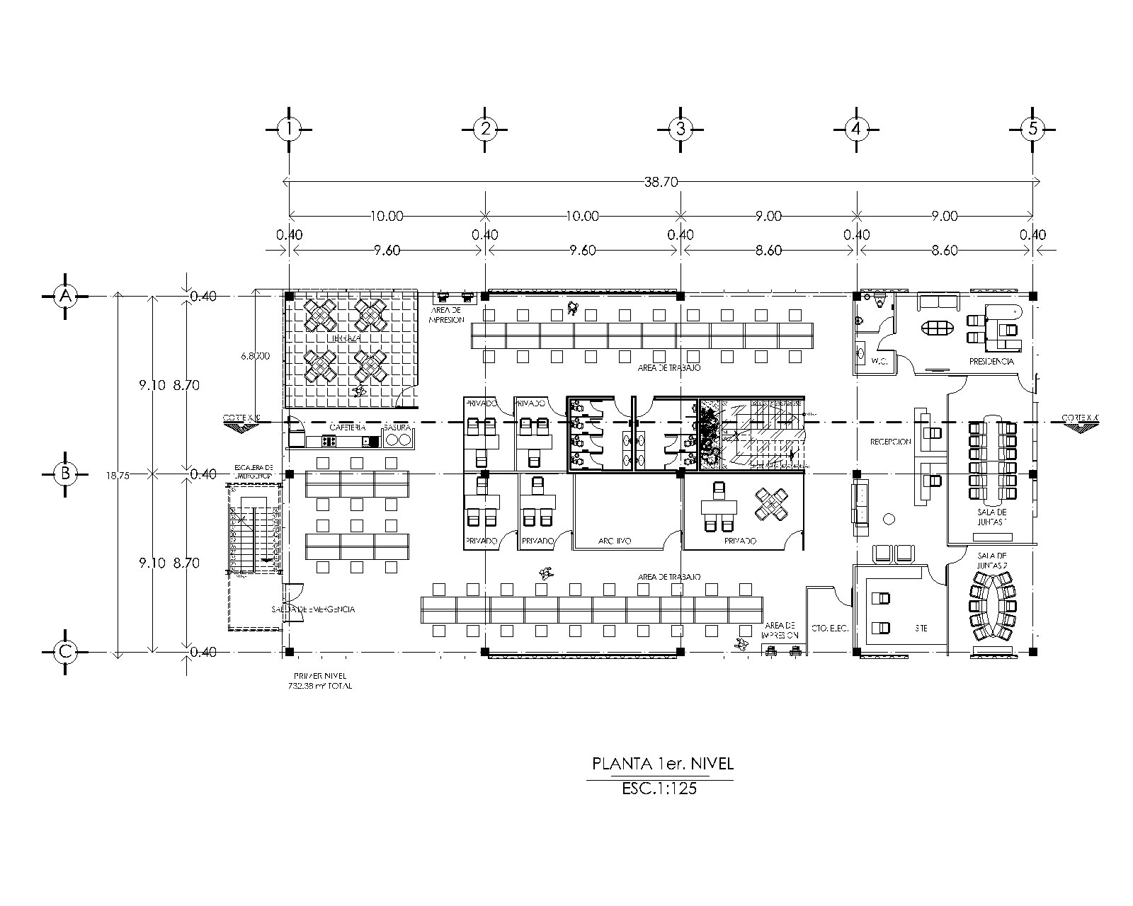
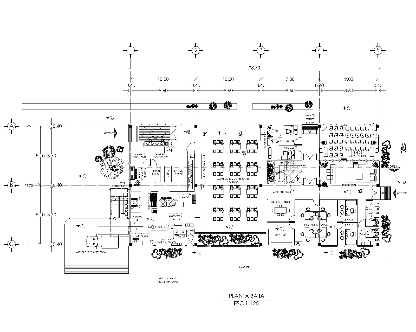
DISEÑO Y CONSTRUCCION DE EDIFICIO " PLANTA NEOLSYM"

Ubicado en Santa Clara Coatitla, Ecatepec de Morelos, Estado de México “Planta NeolSyM” fue una respuesta de enfoque a la necesidad funcional, estética y humana, priorizando la comodidad y eficiencia de los espacios de trabajo.

La fachada presenta un estilo contemporáneo minimalista que, pese a su planitud, destaca por un interesante juego de texturas. Se combinan placas de concreto prefabricado completamente lisas con bloques de formas geométricas que, en conjunto, conforman una celosía. Esta mezcla genera un contraste cromático entre las tonalidades rojizas de la celosía y el blanco del concreto. Además, en el área del comedor predomina el uso del vidrio, estableciendo una conexión visual con el exterior y sus coloridos paisajes.

Diseño arquitectónico

Planta Baja

  • Recepción
  • Salas de capacitación
  • Recursos humanos
  • Archivo
  • Cuarto eléctrico
  • Enfermería
  • Baños
  • Cocina industrial equipada
  • Área de comedor 

Primer nivel

  • Oficinas de presidencia
  • Archivo
  • Sala de juntas
  • Recepción
  • Sanitarios
  • Cafetería con terraza

Segundo nivel
El segundo nivel está concebido para una segunda expansión

.cls-1 { fill: #525251; } .cls-1, .cls-2, .cls-3 { stroke-width: 0px; } .cls-2 { fill: #bccf00; } .cls-3 { fill: #00698c; }

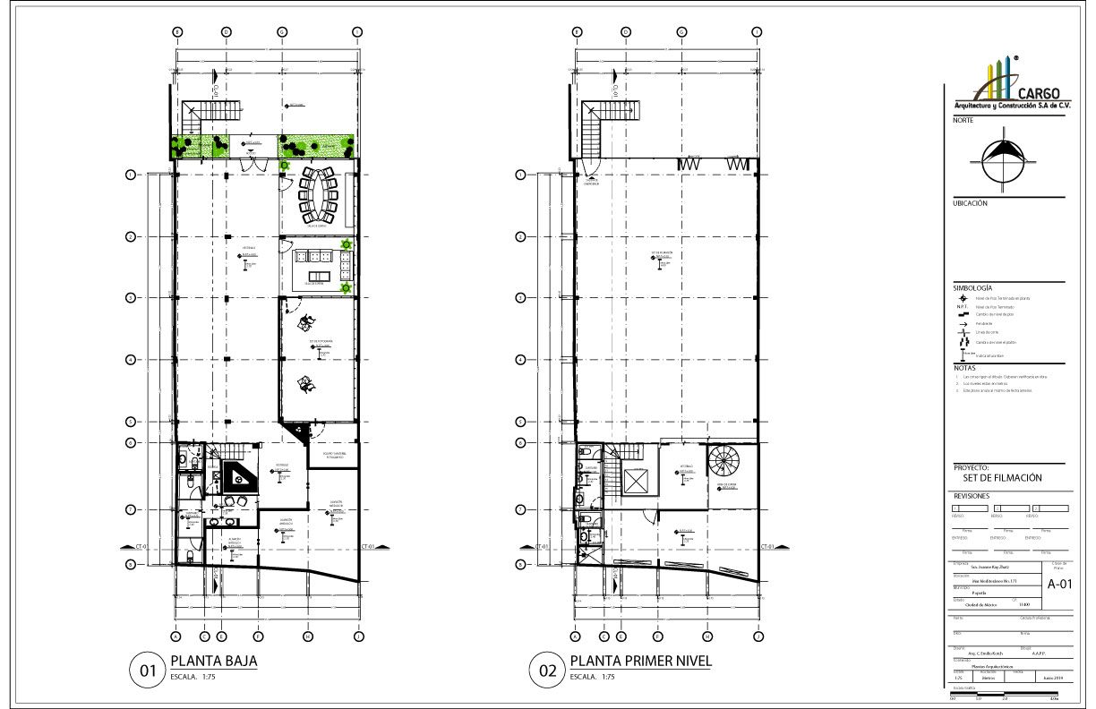
ESTUDIO FOTOGRÁFICO Y DE FILMACIÓN

Ciudad de México, Méx.

Estudio Fotográfico y de Filmación “SHAKTIPROD”

Uno de los principales retos fue optimizar y aprovechar al máximo el inmueble existente, adecuándolo a los requerimientos técnicos y operativos del estudio, garantizando una circulación fluida, privacidad en áreas sensibles como camerinos y vestidores, así como condiciones adecuadas de iluminación, acústica y ventilación en el estudio principal. La propuesta considera además soluciones flexibles para futuras adecuaciones, así como un uso eficiente del espacio y la infraestructura existente.

Distribución Arquitectónica

  • Planta baja:
    Espacios destinados a funciones operativas y logísticas, incluyendo:

    • Área de administración

    • Servicios generales

    • Bodegas para equipo y utilería

  • Planta alta:
    Zona dedicada a las actividades de producción y preparación de colaboradores, conformada por:

    • Estudio principal de filmación y fotografía

    • Vestíbulo de acceso

    • Vestidores

    • Camerinos

    • Sanitarios

  • Nivel 2 (azotea):
    Además nuestra propuesta contempló un Roof Garden con servicios complementarios, que funciona como área recreativa y de descanso, así como espacio alternativo para sesiones al aire libre o eventos privados.

.cls-1 { fill: #525251; } .cls-1, .cls-2, .cls-3 { stroke-width: 0px; } .cls-2 { fill: #bccf00; } .cls-3 { fill: #00698c; }

VIVIENDA UNIFAMILIAR

OCOTEPEC, CUERNAVACA, MOR.

Casa Habitación “20 de Nov”

El terreno de este proyecto es llano y con asoleamiento directo en la segunda mitad del día, es por ello que los materiales que se proponen para esta vivienda son la madera, el concreto aparente, una celosía horizontal que regulan la entrada de luz, entre otros para brindar privacidad y reforzar el diseño exterior

La zona de servicios fue equipada con los espacios justos para realizar actividades de mantenimiento con la debida privacidad que su uso requiere

En el desarrollo de las áreas sociales se aprecia una fachada equipada con ventanales corredizos que enmarcan la homogeneidad y dinamismo de los espacios con un concepto abierto permitiendo la interacción en armonía de los usuarios dentro y fuera de la casa.

Diseño arquitectónico

Planta Baja

  • Cocina con alacena walk-in oculta,
  • Comedor
  • Estancia
  • Baño de visitas 
  • Área de lavado con patio de tendido
  • Bodega
  • Alberca
  • Estacionamiento para 2 autos

Planta Alta

  • Recamara principal con baño privado
  • Recámara secundaria 1
  • Recámara secundaria 2
  • Baño compartido
  • Sala multiusos (sala de tv, distribuidor, o estudio)

Correo Electrónico

contacto@nuvoac.com

Oficina

+52 777 984 4893

Dirección

Calle 20 de Nov #105, CP. 62220, Cuernavaca, Morelos, México.

Sitio Web

https://www.nuvoac.mx

.cls-1 { fill: #525251; } .cls-1, .cls-2, .cls-3 { stroke-width: 0px; } .cls-2 { fill: #bccf00; } .cls-3 { fill: #00698c; }

® NUVOAC DERECHOS RESERVADOS | Sitio web creado por Creaciones Silvestre

Lorem ipsum dolor sit amet, consectetur adipiscing elit. Ut elit tellus, luctus nec ullamcorper mattis, pulvinar dapibus leo.

Scroll al inicio
Abrir chat
Hola 👋
¿En qué podemos ayudarte?